
Orti Ophelia’s House
Splendido quadrilocale in zona Porta Romana nella poetica e pittoresca Via Orti a Milano, all’interno della prima cerchia.
L’immobile è composto da un ampio disimpegno d’ingresso con il pavimento in marmo grigio/nero a scacchi, tre camera da letto, due bagni, locale lavanderia e soggiorno doppio con vista su un’ampia terrazza verso Via Orti. Dotato di un alto livello di efficienza energetica, rientra nella CLASSE ENERGETICA A4.







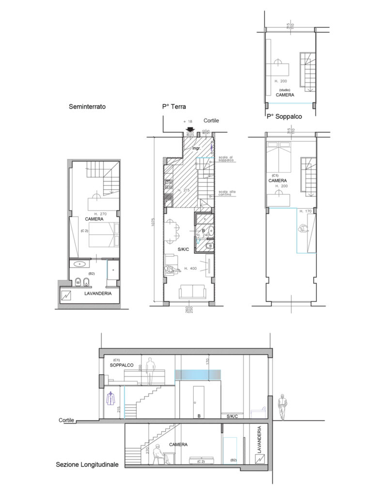
Loft The Total White
Ampio e luminoso loft situato in zona Città Studi, diviso in tre livelli. Piano terreno ingresso, soggiorno con la cucina a vista, bagno e ripostiglio.
Piano seminterrato, camera, bagno e lavanderia. Soppalco con un ampio studio.
Doppio ingresso in CLASSE ENERGETICA B con impianto a pompa di calore ibrido. 90m q.






Donatus House
In una graziosa e tranquilla palazzina d’epoca dei primi del ‘900 in zona Città Studi, due quadrilocali con terrazzo, così composti: ampio ingresso, due camere da letto, due bagni di cui uno in suite, lavanderia e ampio soggiorno con la cucina a vista.
Immobile in classe ENERGETICA A4.

